Височина на радиатора. инсталиране на технически
Има два вида радиатори в мястото за монтаж - под и стена, така че втората опция предполага, че определена височина на радиатора трябва да се спазва от пода, което ще позволи безпроблемното му свързване към отоплителната система.


Незабавно трябва да се каже, че ако чакате ясна индикация за този параметър, това е напразно, защото те просто не съществуват и в общи линии зависи от инсталирането на отоплителната верига и от височината на первазите на прозореца и накрая от височината на самия участък , Въпреки че не може да се каже, че този параметър няма значение, какво предлагаме да разберете сега, а също и да гледате видеоклипа в тази статия.
Инсталиране на технически тръбопроводи и оборудване
Препоръка. При инсталиране на системата, ако размерите на отоплителните радиатори за височина и дължина позволяват да бъдат инсталирани под прозорците, продължете както следва. Батерията под прозореца създава нещо като термична завеса, която ограничава притока на студен въздух отстрани на стъклото.

- Височината, при която радиаторите трябва да се монтират от пода, се полага, когато отоплителният кръг е насочен, и зависи от това дали имате рециркулационна помпа. Ако системата работи без принуда, естествено трябва да има наклон в тръбите, така че трябва да оставите място за наклона на връщащата тръба, ако системата е двутръбна, или захранващите тръби, ако тя е единична тръба.
- В "Ленинград" (еднотръбна система за 3-4 радиатора) батериите също се намират с намаление, тъй като в такива случаи няма специална крана за нагревателя - веригата преминава директно през тях с долната странична връзка.
- Различните системи и монтаж означават, че ако се отдалечите от пода 10-15 cm, височината на инсталацията на отоплителни радиатори съгласно SNIP 3.05.05-84 ("Технологично оборудване и тръбопроводи") ще бъде съвсем нормална за всички контури, По-точно, самата верига трябва да бъде монтирана така, че да е възможно да се спазват тези параметри.
Какви са контурите?

Като цяло има два вида радиаторни вериги - еднотръбни и двутръбни и всичко останало, това вече е модификация на съществуващата система, независимо дали е смесена (топла подово отопление) или колекторна отоплителна система. Във всеки от тези случаи инструкцията изисква използването на единия или на другия контур, само там са направени различни допълнения под формата на санитарно оборудване под формата на трипосочни или четирипосочни кранове и гребени.
Ако се използва система с една тръба, както в горното схематично изображение, то цялата топлинно преносима среда се връща в една тръба - тя излиза от котела и се връща обратно, пренасяйки вече охладената вода за отопление.
По пътя радиаторите нарязани на нея и видът на връзката тук няма никакво значение - под полюс, топлинно или принудително налягане, водата преминава през завоите, влиза в тях и преминава през батерията, връщайки се обратно към тръбата.
Проблемът тук е, че охлаждащата течност, преминала през нагревателя, вече губи предишната си температура, следователно тя продължава да е леко охлаждана вече и толкова повече устройства в такава система, колкото по-студено ще бъдат, отдалечавайки се от котела.

За да може да се демонтира радиатора по време на отоплителния сезон, без да се източва водата, пред него е монтиран байпас - това е тръба, която прекъсва системата и е ясно видима в горната снимка, а самият клапан е поставен пред акумулатора.
В допълнение към подпомагането при демонтажа, байпасът допринася и отчасти за поддържането на температурата на охлаждащата течност, тъй като водата, преминаваща през него, не влиза в радиатора. Но в многоетажни къщи това устройство понякога се използва неправилно - то е поставено на кранчето и се припокрива, преминавайки целия поток през радиатора, затова тези, които живеят по-нататък, вече получават по-студена вода.

При двутръбна система няма проблеми с охлаждането, по-точно е, но зависи само от дължината на самата тръба и като цяло се оказва толкова незначително, че дори не я обръщат внимание - в централизираните системи мрежата е защитена от топлоизолация и има загуби са минимални.
Въпросът е, че горещата охлаждаща течност преминава през тръбата към всички радиатори, но охладената вода, която е преминала през батерията, не се връща обратно, а се връща обратно в връщащата тръба, като по този начин се запазва оригиналната температура през целия контур, без значение колко точки ,
Но тук има един нюанс - цената за монтаж и експлоатация ще бъде малко по-висока, защото на първо място се добавя втора тръба и второ, необходимо е да се затопли повече вода и параметрите на устройството нямат значение, може да бъде височината на радиаторите 250 мм или 1200 мм - така или иначе.
Забележка. Ако има нужда от съвместно свързване на радиатори и топла подова система, тогава се използва двутръбна система, но пред очертанието на водния под се монтира термостатен трипътен вентил, който преразпределя топлоносителя в зависимост от температурата му.
Правила установки

Все четыре схемы подключения радиаторов, которые вы видите на верхнем изображении, применимы, как для однотрубной, так и для двухтрубной системы отопления - способ, который вы будете использовать, больше зависит от расположения контура.
Независимо от това, в автономните еднотръбни отоплителни системи предпочитанието се отнася до долната или долната странична връзка, но това се дължи просто на удобството на инсталацията, а не на повече. Освен това вашият избор може да бъде повлиян от височината на алуминиевите радиатори (или от друг метал) - както вече казахме, тук всичко се свежда до ергономичност.

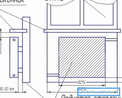
Ако сте избрали радиатори с височина 800 мм, то в 99% от случаите те не се побират под прозореца, тъй като трябва да се оттеглите не само от пода, но и от прага, най-малко 10 см, така че такива нагреватели често се използват като топла природа по стените.
Ето защо най-често срещаната височина на биметалните радиатори е 600 мм - така ще можете да издържате на разстояние от пода до перваза на прозореца, въпреки че нищо не пречи на използването на уреди с височина 400 или 500 мм.

В допълнение, инсталиране на нагревател под прозореца, трябва да имате предвид не само на каква височина да се мотае радиатори, но също така да се отдалечат от стената, така че разликата не е по-малко от? дълбочината на устройството - в противен случай топлопреминаването ще бъде значително подценено.
И отново искам да се върна на височина - ако успеете, опитайте се да издържите на 12 см от пода, но не забравяйте, че ако това разстояние е по-малко от 10 см или повече от 15 см, тогава отново значително ще подценявате ефекта на топлопредаване.

В случай, че инсталацията не е под прозорците, например подовата инсталация на уредите, както и на горната снимка (тук височината на отоплителните радиатори е 400 мм), тогава стената трябва да отстъпи най-малко 20 см.
Заключение
В повечето случаи инсталирането на водно отопление със собствени ръце, всички се опитват да поставят отоплителни уреди под прозорците, поради което те използват най-често срещаната височина - 500-600 мм. Но това изобщо не означава, че трябва да се придържате към тези стандарти.